Рубликатор

 



























Все о псориазе



Отечественные керамические проходные конденсаторы и фильтры

для подавления электромагнитных помех

В последнее время появились статьи, посвященные конструкциям помехоподавляющих фильтров для аппаратуры СВЧ и рекомендациям по их применению [1-3]. Однако в них, как правило, основное внимание уделяется фильтрам зарубежных фирм (Spectrum Control, Erie, Murata и др.). В настоящей работе приводятся данные по конструкциям и характеристикам отечественных изделий. Посколько вопросы расчетов и проектирования схем подавления электромагнитных помех в цепях самой аппаратуры подробно рассмотрены в достаточно большом числе отечественных и зарубежных работ, эти вопросы в настоящей статье не затрагиваются.

Проходные конденсаторы КТП

Проходные конденсаторы КТП разработаны в конце 50-х годов, однако до настоящего времени применяются в ранее разработанной аппаратуре и продолжают выпускаться мелкими сериями. Служат простейшими С-фильтрами, развязывающими по высокой частоте источники питания от нагрузки. Отличаются относительно высоким максимально допустимым напряжением (800, 500 и 400 В). Следует отметить, что переменная составляющая приложенного напряжения для конденсаторов КТП, как и для других проходных конденсаторов и фильтров, ограничивается максимально допустимым значением реактивной мощности, определяемой по формуле:

где f — частота, U — переменная составляющая, С — емкость.

При превышении этого значения может наступить тепловой пробой конденсатора из-за его разогрева, вызванного потерями энергии в диэлектрике.

Конденсатор КТП состоит из керамической трубки с нанесенными на нее внутренним и внешним электродом, внутри которой проходит вывод, связывающий источник питания и нагрузку. К внешнему электроду припаяна резьбовая втулка, служащая элементом крепления, через которую помехи отводятся «на землю» (рис. 1).

Конструкция проходных конденсаторов

Емкость конденсатора определяется диэлектрической проницаемостью керамики, толщиной трубки и площадью перекрытия внутреннего и внешнего электродов. Начиная с определенной частоты сказывается индуктивность проходного вывода и конденсатор превращается в LC-фильтр. В таблице 1 приведены параметры конденсаторов КТП.

Таблица 1. Основные параметры конденсаторов КТП

Вид Группы ТКЕ Резьбовая втулка Номинальные емкости, пФ Номинальное напряжение, В Реактивная мощность, ВАр
КТП-1 П100,
М47, М75, М750, М1500
Н70
М5 5,6-220
1500-3300
500
400
30; 50
1,5; 2,5
КТП-2 П100,
М47, М75, М750, М1500
Н70
М6 8,2-470
4700-6800
500
400
60; 50
2,5
КТП-3 П100,
М47, М75, М750, М1500
Н70
М8 8,2.330
10000; 15000
800
400
60; 70
3,5

Такую же конструкцию и назначение имеют конденсаторы КТПМ, отличающиеся от КТП меньшими размерами.

Проходные конденсаторы К10-54

В отличие от вышеприведенных трубчатых проходных конденсаторов, конденсаторы К10-54 выполнены в многослойной монолитной конструкции (рис. 2). Эти конденсаторы состоят из чередующихся тонких слоев керамического диэлектрика и серебряно-палладиевых электродов. В зарубежных конденсаторах такого типа начинают применять электроды из никеля или меди. Однако длительное сохранение электрических параметров конденсаторов с такими электродами на наш взгляд еще недостаточно изучено и в отечественных конденсаторах несмотря на дороговизну применяют электроды из драгоценных металлов, обеспечивающих в сочетании с монолитной конструкцией минимальные значения собственной индуктивности и эквивалентного последовательного сопротивления. Крепление конденсаторов к «заземленной» поверхности приборов осуществляется припайкой к ней наружного электрода конденсатора. Через сквозное отверствие в конденсаторе пропускается и припаивается к внутреннему электроду провод, электромагнитные помехи в котором подлежат фильтрации. При монтаже конденсаторов рекомендуется применять припои, температура которых или температура стержня паяльника не превышает 210 °С для группы Н90 и 240 °С для групп МПО и Н50. В качестве проходного вывода рекомендуется применять медный серебреный или луженый одножильный и гибкий многожильный провод. В случае применения одножильного провода его диаметр не должен превышать 0,8 мм для конденсаторов с внутренним отверстием 1,3 мм и 2 мм для отверстия 2,5 мм. Провод должен припаиваться перпендикулярно к торцевой поверхности конденсатора и изгибаться после пайки на расстоянии не менее 4 мм от поверхности конденсатора. При пайке заранее изогнутого провода изогнутый участок не должен быть ближе 2 мм от поверхности конденсатора во избежание возникновения электрического разряда.

Конструкция конденсаторов К10-54

Для предотвращения возникновения механического резонанса (нижняя резонансная частота конденсатора более 5000 Гц), провод, проходящий через конденсатор, должен быть жестко закреплен на расстоянии не более 4 мм от поверхности конденсатора с обеих его сторон. Конденсаторы К10-54 применяются в различных конструкциях EMI-фильтров, в том числе в фильтрах Б23Б, о которых пойдет речь ниже. Основные характеристики конденсаторов приведены в табл. 2.

Таблица 2. Основные характеристики конденсаторов К10-54

Группа ТКЕ Uном, В Номинальная емкость Габаритные размеры, макс., мм Реактивная мощность, ВАр
D* d* H*
МПО 50 820 пФ х 0,022 мкФ 4,5-12,5 0,5-2,0 3-4 10-40
100 150 пФ х 0,018 мкФ
350 4,7х1800 пФ
Н50 50 0,068-1,5 мкФ 0,5х2,0
100 0,01х1,0 мкФ
350 470 пФ х 0,15 мкФ
500 0,068; 0,1 мкФ
Н90 50 0,22х6,8 мкФ 0,5-2,0
80 0,1х3,3 мкФ
250 0,015х0,47 мкФ

* Примечание: D — внешний диаметр, d — внутренний диаметр, H — высота.

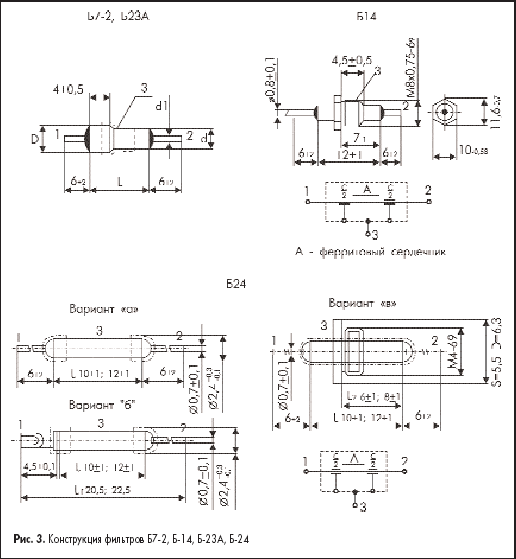
Фильтры Б7-2, Б14, Б23А, Б24

Фильтры Б7-2, Б14, Б23А, Б24 являются Pi-фильтрами, содержащими один индуктивный и два емкостных элемента (рис. 3). Основное отличие их от проходных конденсаторов состоит в том, что внутренние электроды фильтра выполнены из двух раздельных изолированных друг от друга поверхностей, образующих два емкостных элемента. Емкость каждого из них равняется половине номинальной емкости фильтра. На проходящий через фильтр внутренний вывод надета ферромагнитная трубка, создающая вместе с выводом индуктивный элемент фильтра. Его индуктивность в зависимости от типа фильтра лежит в пределах значений 0,03–1,8 мкГн. Монтаж фильтров в аппаратуру осуществляется в зависимости от конкретных условий и конструкции фильтров: пайкой за корпус для фильтров Б7-2, Б23А, Б24 (вариант «а» и «б») или при помощи резьбовой втулки для фильтров Б14 и Б24 (вариант «в»).

Конструкция фильтров Б7-2, Б-14, Б-23А, Б-24

При этом необходимо соблюдать осторожность, так как изгибающие нагрузки, большие крутящие моменты (более 0,025 кгс·м) и удары приводят к образованию трещин и сколов керамики и могут вывести фильтр из строя.

Изгибы и скручивание проходных выводов не допускается. При пайке фильтров за корпус следует применять режимы, указанные в технических условиях, так как при перегреве или термоударах в керамическом корпусе могут возникнуть трещины. В таблице 3 приведены основные характеристики фильтров.

Таблица 3. Основные характеристики фильтров Б7-2, Б-14, Б-23А

Тип фильтра Диапазон частот помехоподавления, МГц Группа ТКЕ Номинальная емкость, пФ Номиальное напряжение, В Реактивная мощность, ВАр Макс. ток, А Индуктивность, МкГн
Б7-2 100–1500 Н70 4700 250 2,5 5 0,05
Б-14 100–1500 Н70 3300; 4700 500 2,5 5 0,05
Б-23А 100–10000 Н30 1000; 1500 250 2,5 10;15 0,05

Вносимое затухание фильтров составляет: Б7-2 на частотах 100–200 МГц — 35 дБ, 200–800 МГц — 50 дБ, 800–1500 МГц — 35 дБ; Б14 на частотах от 100–1500 МГц — 40 дБ; Б- 23А — 40–45 дБ во всем диапазоне частот помехоподавления.

На рис. 4–5 приведены зависимости частоты среза от емкости, а на рис. 6 — характер зависимости вносимого затухания от частоты для наиболее перспективных фильтров Б-24.

Характер зависимости частоты среза от емкости фильтров Б-24 длиной 12 мм

Характер зависимости частоты среза от емкости фильтров Б-24 длиной 10 мм

Характер зависимости вносимого затухания фильтров Б-24 от частоты

Таблица 4. Основные характеристики фильтров Б-24

Группа ТКЕ М750 М1500 М2200 М3300 Н30 Н50 Н70 Н90
Номинальное напряжение, В 250 100
Номинальная емкость, пФ 43–91 91–240 240–560 560–910 910–1600 1600–3000 3000–5100 5100–10000
Индуктивность, мкГн 0,030–0,0085 0,060–0,130 0,060–0,130 0,090–0,220 1,2–1,8
Диапазон частот помехоподавления, МГц 0,7–10 000
Вносимое затухание, дБ на частотах 100–1500 МГц 3,0–65 10–70
Длина корпуса, мм 10; 12

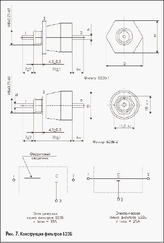
Фильтры Б23Б

Рассмотренные выше фильтры имеют максимальную емкость 10000 пФ, что ограничивает нижнюю границу частотного диапазона помехоподавления величиной 100 МГц для фильтров Б7-2, Б-14, Б23-А и 0,7 МГц для фильтров Б24. Для снижения этой границы требуется существенное увеличение емкости фильтра, что трубчатая конструкция конденсаторов не может обеспечить. Поэтому в L-C-фильтрах Б23Б (рис. 7) в качестве емкостных элементов применены монолитные многослойные конденсаторы К10-54, которые были описаны выше, с емкостью от 0,047 до 6,8 мкФ. Это позволило снизить нижнюю границу до 10 кГц. Емкостные элементы, проходные выводы, ферритовые трубки (для фильтров на ток 10 А), размещены внутри керамического корпуса и герметизированы эпоксидным компаундом. В табл. 5 приведены основные характеристики фильтров.

Конструкция фильтров Б23Б

Таблица 5. Основные характеристики фильтров Б24Б

ТКЕ Номинальное напряжение, В Максимальный ток, А Номинальная емкость, мкФ Индуктивность, мкГн Реактивная мощность, ВАр
Н90 50 10 0,47; 0,68 0,05 2
0,47; 0,68; 1,0 3
1,5; 2,2 0,05
2,2; 3,3 10
4,7; 6,8 20
25 1,5: 2,2 Не нормируется 7
2,2; 3,3 10
4,7; 6,8 20
250 10 0,047 0,05 3
0,047; 0,068 5
0,047; 0,068; 0,1; 0,15 10
0,1; 0,15; 0,22; 0,33 20
0,22; 0,33; 0,470 30
25 0,047; 0,068; 0,1; 0,15 Не нормируется 10
0,1; 0,15; 0,22; 0,33 20
0,22 30

На рис. 8 приведены зависимости вносимого затухания от частоты при сопротивлении схемы 75 Ом.

Характер зависимости вносимого затухания фильтров Б23Б от частоты

Приближенный расчет вносимого затухания фильтров в диапазоне частот помехоподавления от 10 кГц до 10 МГц при значениях вносимого затухания не более 60 дБ для фильтров на напряжение 50 В и не более 50 дБ для фильтров на напряжение 250 В может производиться по формуле:

Где: А — вносимое затухание (дБ); w — круговая частота (с-1); R — сопротивление измерительной схемы, равное 75 Ом.

Фильтры К10-78

В отличие от ранее разработанных отечественных фильтров, LC-фильтры К10–78 выполнены в чип-исполнении и предназначены для поверхностного монтажа. За основу принята базовая конструкция многослойного монолитного керамического чип-конденсатора.

Особенностью является иная конфигурация внутренних электродов, состоящая из проходного электрода, выходящего на торцевые контактные площадки, и Т-образного электрода, создающего третью контактную площадку и образующего емкость с проходным электродом (рис. 9). Через этот электрод электромагнитные помехи отводятся на «землю». Частота среза на уровне 3 дБ от 0,25 МГц для емкости 22000 пФ до 302,2 МГц для емкости 22 пФ.

Конструкция и эквивалентная схема фильтров К10-78

Значение вносимого затухания на частотах близких к 1000 МГц составляет 17–18 дБ. По своим параметрам эти фильтры близкик фильтрам серии NFM 40R фирмы Murata. В табл. 6 приведены основные характеристики фильтров, а на рис. 10 — зависимость вносимого затухания от частоты.

Зависимость вносимого затухания фильтров К10-78

Таблица 6. Основные характеристики фильтров К10-78

Группа по ТКЕ Номинальное напряжение Максимальный ток, мА Номинальная емкость, пФ Реактивная мощность, ВАр
МПО 100 300 22–220 3
М750 470–1000 0,5
Н50 1000–22000 0,12

Литература

  1. К. Джуринский. Миниатюрные помехоподавляющие фильтры для РЭА СВЧ // Электроника: Наука, Технология, Бизнес. 2001. No 3.
  2. А. Скрипников. EMI-фильтры Murata //Компоненты и Технологии. 2002. No 2.
  3. А. Малкин, С. Шепелев. Помехоподавляющие фильтры фирмы «SPECTRUM CONTROL» // Электронные компоненты. 1997. No 7 (8).

Матвей Волопик


Статьи по: ARM PIC AVR MSP430, DSP, RF компоненты, Преобразование и коммутация речевых сигналов, Аналоговая техника, ADC, DAC, PLD, FPGA, MOSFET, IGBT, Дискретные полупрoводниковые приборы. Sensor, Проектирование и технология, LCD, LCM, LED. Оптоэлектроника и ВОЛС, Дистрибуция электронных компонентов, Оборудование и измерительная техника, Пассивные элементы и коммутационные устройства, Системы идентификации и защиты информации, Корпуса, Печатные платы

Design by GAW.RU